




汕德卡后双桥餐车
1、 产品目录
序号 | 产品名称 | 产品型号 | 整车价格(单位:万) |
1 | 汕德卡后双桥餐车(柴油国六) | CLW5160XCCZ6 |
2、 产品简介
该型餐车在驾驶室后部加装厢体,两侧箱体上分别设置2套采光窗;下部两侧为裙舱,用以安装发电机、液压泵站、附件电瓶、线缆盘、副油箱等设备;厢体顶部安装有带换气扇天窗、排烟帽等;厢体尾部设置后开门,并设置抽拉梯,以便进出舱内。主要为野外执勤人员提供齐全的炊事**,具有满足每2小时300人的就餐需求(三菜一汤)。厢体内安装有:封闭燃烧式燃油节能蒸饭柜、炖锅和炒锅、洗菜池、切菜台、开水机等。厢体两侧上部设置不锈钢吊柜和抽油烟机排风系统,车内顶安装车内照明灯;
整车性能符合《机动车运行安全技术条件(GB7258-2017)》、《汽车外廓尺寸限界(GB1589-2016)》、GB50054-95《低压配电设计规范》;整车外廓尺寸、轴荷及质量应符合GB1589-2016《道路车辆外廓尺寸、轴荷及质量限值》的规定;整车设计满足《消防通信指挥系统设计规范》(GB50313-2013)。

技术要求
底盘:重汽汕德卡
外观颜色: 可选
公告参数
**总质量 | 16000kg |
出餐效率 | 2小时300人的就餐需求(三菜一汤) |
轴距 | 4275+1400 mm |
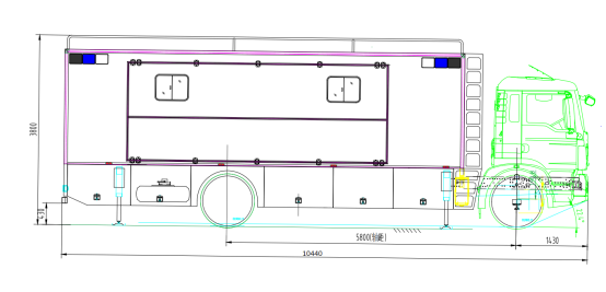
车体尺寸:长×宽×高 | 9460 mm×2550 mm×3900 mm |
底盘型号 | ZZ5266XXYN504GF1K |
接近/离去角 | 16º/8º |
轮胎 | 295/80R22.5 |
发动机型号 | MC07H.35-60 |
发动机排量 | 7360mL |
排放标准 | 国Ⅵ |
额定功率 | 257KW |
**时速 | 89(km/h) |
驱动型式 | 后驱 |
**小离地间隙 | 430mm |
变 速 箱 | 重汽9档变速箱,带高低档 |
前悬/后悬(mm) | 1430/3300 |
轴数 | 2 |
其他 |
4、平面设计图
整车布局设计说明




(车内俯视剖视图)
5、参考图片(本图片仅供参考,以客户实际订购为准)


名称 | 详细配置参数 | 品牌 | 单位 | 数量 |
底盘 | 汕德卡ZZ5266XXYN504GF1K底盘 | 重汽 | 辆 | 1 |
厢体 | 厢材采用厢式大板粘接结构、骨架采用壁厚2.0mm优质磷化处理后的高强度矩形钢管型材、中间为骨架。车内底部敷设防滑大花纹铝板,厚度3mm,并布置可清洗地垫。 | 定制 | 套 | 1 |
高原灶具 | 两炒灶一炖灶,自动点火,火力可调节 | 定制 | 套 | 1 |
蒸饭柜 | 蒸饭柜,自动点火,火力可调节, 12-24盘 | 定制 | 套 | 1 |
四门冰柜 | 四门双温,750L, 含有冷藏、冷冻功能 | 定制 | 台 | 1 |
开水器 | 不锈钢开水器,功率3kw,220v/30L | 吉宝 | 台 | 1 |
微波炉 | 20L | 美的 | 台 | 1 |
洗菜池操作台 | 不锈钢材质,配360度可旋转大弯水龙头 | 定制 | 套 | 1 |
炊具及餐具 | 满足300人需求,包含快餐盘、筷子、勺子、刀具、锅铲等 | 定制 | 套 | 1 |
抽烟机 | 不锈钢材质,内置大吸力轴流风机 | 定制 | 套 | 1 |
发电机 | 8kW柴油 | 优普 | 套 | 1 |
**蓄电池 | 200AH | 骆驼 | 块 | 2 |
行车记录仪 | 7寸屏/倒车雷达/影像/32G | 定制 | 套 | 1 |
** | 1.6米全红/200w报**器 | 湖北启瑞 | 套 | 1 |
防雷接地系统 | 铜棒配5米铜带 | 定制 | 套 | 1 |
油泵 | 餐厨设备供油 | 定制 | 个 | 1 |
净水箱 | 为全车提供洁净的水,容积1000L;采用304不锈钢,底部设置排污口,设置有液位显示。 | 定制 | 个 | 1 |
污水箱 | 304不锈钢200L | 定制 | 个 | 1 |
净水器 | 3级过滤,反渗透过滤,达到直饮用水标准 | 定制 | 套 | 1 |
水泵 | 24V智能水泵, 额定流量1.5m3/h,额定扬程17m,功率0.3Kw | 定制 | 台 | 1 |
炊事燃油箱 | 储油箱和工作油箱各一个,储油箱配电动油泵实现向工作油箱电动供油,带油位显示及** | |||
附加油箱 | 200L 油箱含油位显示 | |||
消毒柜 | ||||
多功能切菜机 | ||||
多功能绞肉机 | ||||
消毒灯 | ||||
照明灯 | ||||