




豪沃28人宿营车
1、 产品目录
序号 | 产品名称 | 产品型号 | 整车价格(单位:万) |
1 | 豪沃后双桥宿营车(柴油国六) | CL5220TSY6BZ |
2、 产品简介
我公司设计的多功能宿营车可以满足外出执行人员住宿休息的后勤综合保障车辆,主要由二类汽车底盘、扩展厢式车的结构形式、宿营**,空气调节系统、影视系统、厕所系统、水路系统、供配电系统、照明系统、换气系统等组成。能够满足24人的住宿,简单洗漱和方便。
整车性能符合《机动车运行安全技术条件(GB7258-2017)》、《汽车外廓尺寸限界(GB1589-2016)》、GB 50054-95《低压配电设计规范》;整车外廓尺寸、轴荷及质量应符合GB1589-2016《道路车辆外廓尺寸、轴荷及质量限值》的规定;整车设计满足《消防通信指挥系统设计规范》(GB 50313-2013)。

技术要求
底盘:重汽豪沃
外观颜色: 可选
公告参数
**总质量 | 22000kg |
住宿人数 | 28人 |
轴距 | 5800+1350 mm |
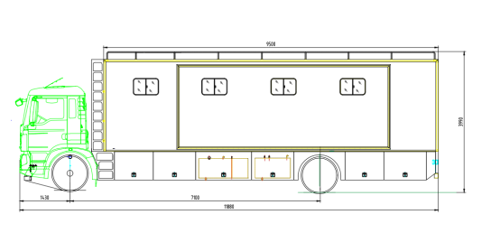
车体尺寸:长×宽×高 | 11980 mm×2500 mm×3950 mm |
底盘型号 | ZZ1257N464GF1 |
接近/离去角 | 19º/8º |
轮胎 | 295/80R22.5 |
发动机型号 | MC07H.35-60 |
发动机排量 | 7360mL |
排放标准 | 国Ⅵ |
额定功率 | 257KW |
**时速 | 89(km/h) |
驱动型式 | 后驱 |
**小离地间隙 | 360mm |
变 速 箱 | 9前进档,1倒退挡 |
前悬/后悬(mm) | 1430/3400 |
轴数 | 3 |
其他 |
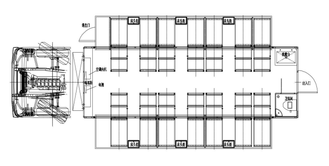
4、平面设计图
整车布局设计说明

(车身左侧布局设计参考图)

(车身左侧布局设计参考图)
整车布局采用 14*2=28床铺的布局

(车内俯视剖视图)
.布局说明:
整车: 14*2=28 床铺布局,采用重汽汕德卡底盘,车辆长度
11980*2550*3950 mm;
1、 车辆内部床铺采用折叠式上下铺,**洗手间和操作台分布在厢体内车尾两侧。
2、每套床铺配有**的床头柜和置物框,厢体内配有空调和电视。
5、参考图片(本图片仅供参考,以客户实际订购为准)


项目 | 详细配置参数 | 品牌 | 单位 | 数量 |
底盘 | 重汽ZZ1257N464GF1 | 豪沃 | 辆 | 1 |
厢体 | 通风天窗 | 定制 | 套 | 2 |
抽拉梯 | 定制 | 套 | 1 | |
出入门 | 定制 | 套 | 1 | |
外推窗 | 定制 | 套 | 6 | |
专用功能系 统 | 折叠床 | 定制 | 套 | 28 |
床头柜 | 定制 | 套 | 6 | |
卫浴间 | 定制 | 套 | 1 | |
电视柜 | 定制 | 套 | 1 | |
配电系统 | 发电机(8KW柴油静音发电机) | 定制 | 个 | 1 |
空调(2匹) | 定制 | 个 | 2 | |
暖风机(5KW) | 定制 | 套 | 1 | |
液晶电视 | 定制 | 个 | 1 | |
充电逆变一体机(2KW) | 定制 | 个 | 1 | |
双电源自动转换器 | 定制 | 个 | 1 | |
蓄电池(200A) | 定制 | 个 | 2 | |
便携式卷线盘(30米)可选装电动 | 定制 | 个 | 1 | |
外接航空插头 | 定制 | 套 | 1 | |
卫浴间换气扇 | 定制 | 套 | 1 | |
**系统 | 360全景行车记录仪 | 定制 | 套 | 1 |
车载电台 | 定制 | 套 | 1 | |
**(长红1.6米) | 定制 | 套 | 1 | |
防雷接地系统 | 定制 | 套 | 1 | |
避雷针 | 定制 | 个 | 1 | |
水路系统 | 500L净水箱(不锈钢) | 定制 | 个 | 1 |
200L污水箱(不锈钢) | 定制 | 个 | 1 | |
水泵 | 定制 | 台 | 1 |