




东风多利卡电源车
1、 产品目录
序号 | 产品名称 | 产品型号 | 整车价格(单位:万) |
1 | 东风多利卡电源车(柴油国六) | CLW5090XDY6 |
2、 产品简介
我公司设计的移动电源车具备厢体空间大,操控性好、维修简便、通过性能强等特点。主要搭载发电设备、照明设备及其它救援**设备。可广泛应用于应急消防队、公安、医疗卫生、厂矿企业及社区、码头等场所。
整车符合《QC/T453-2002 厢式运输车》、《机动车运行安全技术条件(GB7258-2017)》GB/T 18883-2002、《汽车外廓尺寸限界(GB1589-2016)》、GB50054-95《低压配电设计规范》;整车外廓尺寸、轴荷及质量应符合GB1589-2016《道路车辆外廓尺寸、轴荷及质量限值》的规定;

技术要求
底盘:东风多利卡D7
外观颜色: 可选
公告参数
**总质量 | 9400kg |
发电机组 | 潍柴200KW |
轴距 | 3800 mm |
车体尺寸:长×宽×高 | 7250 mm×2270 mm×3150 mm |
底盘型号 | EQ1125SJ8CDC |
接近/离去角 | 21º/12º |
轮胎 | 8.25R20 |
发动机型号 | D25TCIF1 |
发动机排量 | 2499mL |
排放标准 | 国Ⅵ |
额定功率 | 110KW |
**时速 | 103(km/h) |
驱动型式 | 后驱 |
**小离地间隙 | 450mm |
变 速 箱 | 6档 |
前悬/后悬(mm) | 1130/2320 |
轴数 | 2 |
其他 |
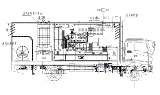
4、平面设计图




5、参考图片(本图片仅供参考,以客户实际订购为准)


|
|
|
|
|
| |
汽车 | 东风底盘 | EQ1125SJ8CDC | 1 | 辆 | 排放标准为国六 | |
发电机组 | 发电机组 | 200KW(潍柴) | 1 | 台 | 底座油箱、带一级消音器、波纹管、电瓶、控 制屏等 | |
静音厢体及照明 | 厢体 | 定制 | 1 | 套 | 厢体防火,阻燃,防 雨,防尘,防锈,降噪,隔震,长期抗震结构,外层强度高,表面处理平整,整车配重合 理 | |
1 | 底盘改造 | 定制 | 1 | 套 | ||
2 | 进风系统 | 定制 | 1 | 套 | 手动开关密闭式进风铝 合金百叶窗、消音厢含 防鼠网 | |
3 | 排风系统 | 定制 | 1 | 套 | ||
4 | 应急照明灯 | 定制 | 1 | 只 | 位于机组室 | |
5 | 机组左侧维修门 | 定制 | 1 | 套 | 含铰链、锁 | |
6 | 机组右侧维修门 | 定制 | 1 | 套 | 含铰链、锁 | |
7 | 后侧对开门 | 定制 | 1 | 套 | 含铰链、锁 | |
8 | **屏 | 定制 | 1 | 套 | 含发电机组原配 | |
9 | 电力输出箱 | 定制 | 1 | 个 |
10 | 厢体内交/直流照明及 开关 | 定制 | 1 | 套 | 设置于机组间交/直流 各两套及绞盘间交/直 流各一套等 | |
11 | 厢体示廓灯 | 定制 | 1 | 套 | 前后顶角各2个 | |
12 | 排烟防雨 | 定制 | 1 | 套 | 防水可自动开启 | |
13 | 机组排污/放油口 | 定制 | 2 | 个 | 置于机组室中 | |
14 | 机组安装总成 | 定制 | 1 | 套 | ||
15 | 急停开关 | 定制 | 1 | 个 | 含机组原装 | |
16 | 车身油漆及广告 | 定制 | 1 | 套 | 客户指定 | |
17 | 接地桩 | 0.6米 | 1 | 个 | 表面镀锌 | |
18 | 接地线 | 10米 | 1 | 套 | 25mm2 | |
19 | 灭火器 | 2KG | 2 | 只 | 2KG置于机组室 | |
20 | 市电输入连接器 | 220V | 1 | 套 | 单相 | |
21 | 机组室 | 定制 | 1 | 套 | ||
22 | 电缆绞盘室 | 定制 | 1 | 套 | 置于厢体后部 | |
辅件 | 1 | 液压支撑腿 | 定制 | 1 | 套 | 整车**支撑单腿5T级可单独动作 |
2 | 随机组工具☆ | 定制 | 1 | 套 | 机组自带 | |
3 | 底盘原厂随车工具 | 定制 | 1 | 套 | 底盘车自带 | |
4 | 车辆工具箱 | 定制 | 1 | 套 |